• master-mpc@mail.ru
  • г. Архангельск, ул. Серафимовича, д.22

ЖК Агат, пр. Советских Космонавтов, д.72/1

ЖК «Агат» это современный 4-этажный жилой дом комфорт-класса в самом центре Архангельска (ул. Поморская – пр. Советских Космонавтов – ул. Володарского).

Дом строится по индивидуальному проекту из кирпича «теплая керамика».

Проект предусматривает безопасную безбарьерную среду повышенной комфортности, а именно:
•    входы в подъезды на уровне земли;
•    безопасные светопрозрачные входные группы;
•    пассажирские лифты спускаются в холл и поднимаются на каждый этаж, в том числе на первый и на -1 этаж, где располагаются кладовые;
•    на двери в подъезд будет установлен «умный» домофон;
•    дизайнерская отделка холла;
•    в помещениях общего пользования будут установлены энергосберегающие светильники с датчиком движения.

Отделка квартир предчистовая:
•    выровнены и отштукатурены стены;
•    чистовые полы (полусухая стяжка);
•    межкомнатные перегородки из силикатных блоков;
•    разводка силовой электрической сети до квартирного щитка;
•    видеодомофонная связь и кабели интернет провайдеров – до квартирного щитка;
•    остекление балкона или лоджии в квартирах;
•    установка двухтарифных электросчетчиков;
•    установка индивидуальных приборов отопления.

Благоустройство территории:
После окончания строительства на придомовой территории будет проведен комплекс работ по благоустройству – устройство детской и спортивной площадок и озеленение, установка малых форм для отдыха жильцов, асфальтирование проездов и гостевой парковки.
Срок сдачи новостройки: III квартал 2025г.



***Данное предложение не является публичной офертой и не обязывает нас к заключению договора. Оно служит исключительно информационным целям и может быть изменено или отозвано без уведомления

  • Срок сдачи ДОМ СДАН
  • Этажей 4
  • Квартир 88

Планировки

№ КВ - ТИП – ОБЩ. ПЛОЩАДЬ, м2 – ЦЕНА, руб

1 ЭТАЖ

Кв №1 - евро 2 – 45,11 м2
Кв №2 - 1-комн – 39,22 м2
Кв №3 - 1-комн – 43,66 м2
Кв №4 - 1-комн – 42,08 м2
Кв №5 - 2-комн – 65,92 м2
Кв №6 - 2-комн - 55,56 м2

2 ЭТАЖ

Кв №7 - евро 2 – 52,50 м2
Кв №8 - 1-комн – 43,10 м2
Кв №9 - 1-комн – 43,66 м2
Кв №10 - 1-комн – 42,08 м2
Кв №11 - 2-комн – 65,92 м2
Кв №12 - 2-комн - 55,56 м2

3 ЭТАЖ

Кв №13 - евро 2 – 52,50 м2 –
Кв №14 - 1-комн – 43,10 м2
Кв №15 - 1-комн – 43,66 м2 –БРОНЬ
Кв №16 - 1-комн – 42,08 м2
Кв №17 - 2-комн – 65,92 м2
Кв №18 - 2-комн - 55,56 м2

4 ЭТАЖ

Кв №19 - евро 2 – 52,50 м2
Кв №20 - 1-комн – 43,10 м2 – 7 636 000
Кв №21 - 1-комн – 43,66 м2
Кв №22 - 1-комн – 42,08 м2 –БРОНЬ
Кв №23 - 2-комн – 65,92 м2
Кв №24 - 2-комн - 55,56 м2
№ КВ - ТИП – ОБЩ. ПЛОЩАДЬ, м2 – ЦЕНА, руб

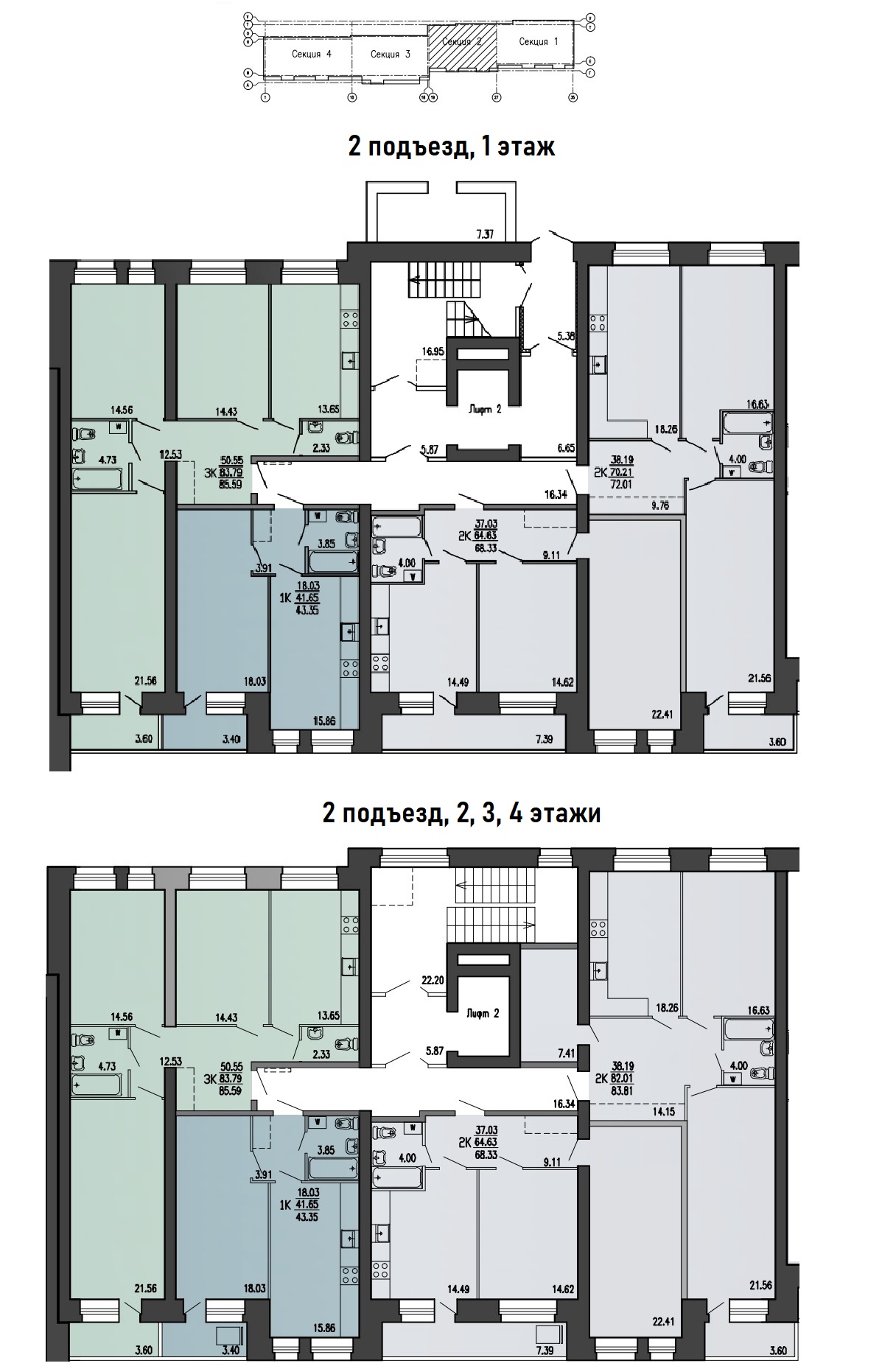
1 ЭТАЖ

Кв №25 - 2-комн – 70,21 м2
Кв №26 - 2-комн – 64,63 м2
Кв №27 - 1-комн – 41,65 м2
Кв №28 - 3-комн - 83,79 м2


2 ЭТАЖ

Кв №29 - 3-комн - 79,50 м2
Кв №30 - 2-комн – 64,63 м2
Кв №31 - 1-комн – 41,65 м2
Кв №32 - 3-комн - 83,79 м2

3 ЭТАЖ

Кв №33 – 2-комн – 79,50 м2
Кв №34 - 2-комн – 64,63 м2
Кв №35 - 1-комн – 41,65 м2
Кв №36 - 3-комн - 83,79 м2


4 ЭТАЖ

Кв №37 – 2-комн – 79,50 м2 – 13 913 000
Кв №38 - 2-комн – 64,63 м2
Кв №39 - 1-комн – 41,65 м2
Кв №40 - 3-комн - 83,79 м2
№ КВ - ТИП – ОБЩ. ПЛОЩАДЬ, м2 – ЦЕНА, руб

1 ЭТАЖ

Кв №41 - 3-комн – 74,83 м2
Кв №42 - 1-студ – 37,11 м2 - 6 300 000
Кв №43 - 1-студ – 30,55 м2
Кв №44 - 1-комн - 41,74 м2 – БРОНЬ
Кв №45 - 3-комн - 93,93 м2

2 ЭТАЖ

Кв №46 –3-евро – 82,22 м2
Кв №47 - 1-студ – 40,54 м2
Кв №48 - 1-комн – 42,51 м2
Кв №49 - 1-комн - 41,74 м2
Кв №50 - 3-комн - 93,93 м2

3 ЭТАЖ

Кв №51 - 3-комн – 82,22 м2
Кв №52 - 1-комн – 40,54 м2
Кв №53 - 1-комн – 42,51 м2 - БРОНЬ
Кв №54 - 1-комн - 41,74 м2 -
Кв №55 - 3-комн - 93,93 м2


4 ЭТАЖ

Кв №56 –3-евро – 82,22 м2
Кв №57 - 1-студ – 40,54 м2 – 7 494 000
Кв №58 - 1-комн – 42,51 м2 - БРОНЬ
Кв №59 - 1-комн – 41,74 м2
Кв №60 - 3-комн - 93,93 м2
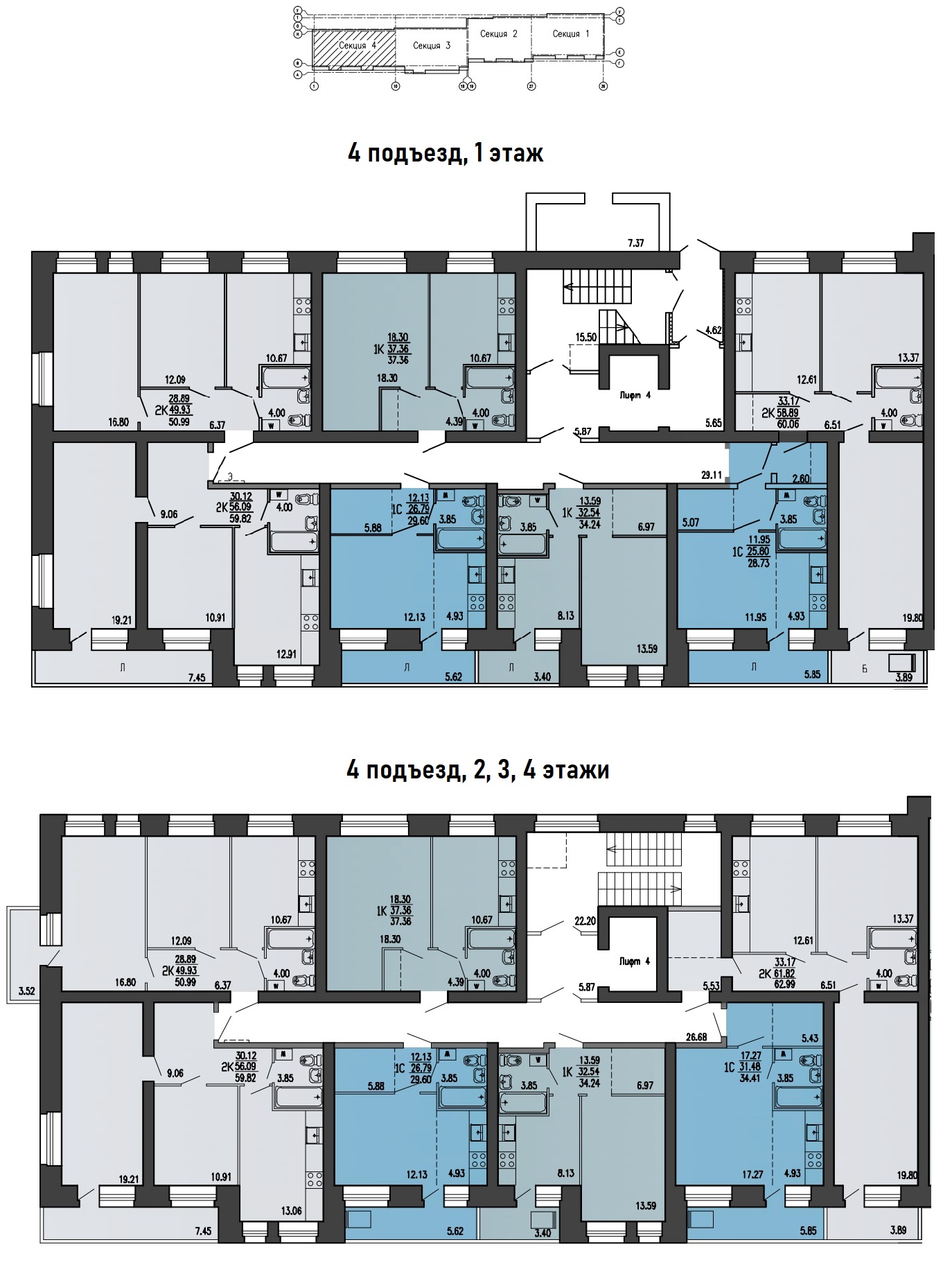
№ КВ - ТИП – ОБЩ. ПЛОЩАДЬ, м2 – ЦЕНА, руб

1 ЭТАЖ

Кв №61 - 2-комн – 58,89 м2
Кв №62 - 1-студ – 25,80 м2
Кв №63 - 1-комн – 32,54 м2
Кв №64 - 1-студ - 26,79 м2
Кв №65 - 2-комн - 56,09 м2
Кв №66 - 2-комн - 49,93 м2
Кв №67 - 1-комн - 37,36 м2

2 ЭТАЖ

Кв №68 –2-комн – 61,82 м2
Кв №69 - 1-студ – 31,48 м2
Кв №70 - 1-комн – 32,54 м2
Кв №71 - 1-студ - 26,79 м2
Кв №72 - 2-комн - 56,09 м2
Кв №73 - 2-комн - 49,93 м2
Кв №74 - 1-комн - 37,36 м2

3 ЭТАЖ

Кв №75 –2-комн – 61,82 м2
Кв №76 - 1-студ – 31,48 м2
Кв №77 - 1-комн – 32,54 м2
Кв №78 - 1-студ - 26,79 м2
Кв №79 - 2-комн - 56,09 м2
Кв №80 - 2-комн - 49,93 м2
Кв №81 - 1-комн - 37,36 м2



4 ЭТАЖ

Кв №82 –2-комн – 61,82 м2
Кв №83 - 1-студ – 31,48 м2
Кв №84 - 1-комн – 32,54 м2
Кв №85 - 1-студ – 26,79 м2
Кв №86 - 2-комн – 56,09 м2
Кв №87 - 2-комн – 49,93 м2
Кв №88 - 1-комн - 37,36 м2